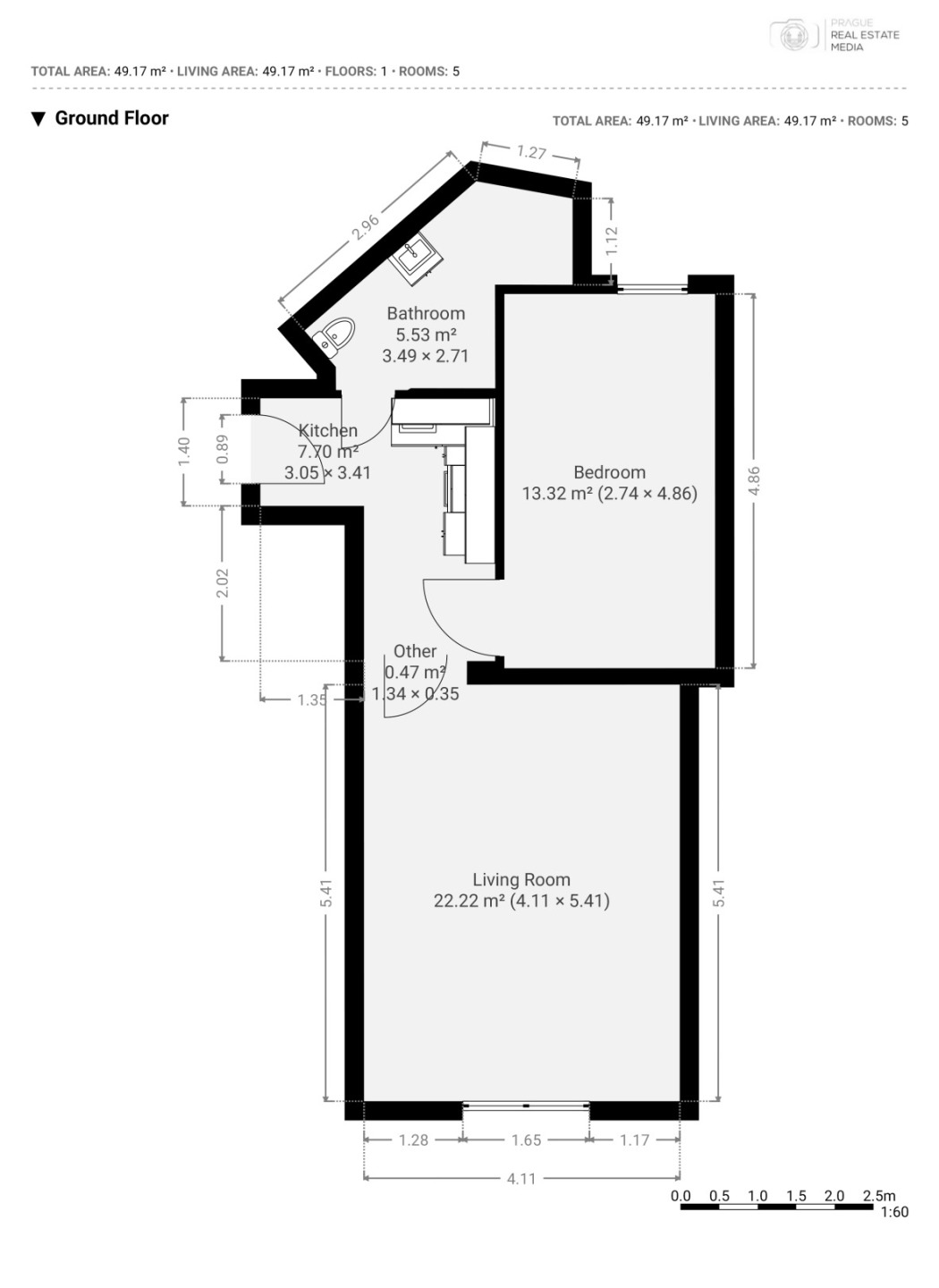
Nabízíme na prodej byt 2+1 o velikosti 48 m² v 1. nadzemním podlaží cihlového domu na Praze 8 - Libeň. Rekonstrukce zahrnuje: • kompletní výměnu elektroinstalace • novou kuchyňskou linku se spotřebiči • kompletní rekonstrukci koupelny a samostatného WC • nový bojler na ohřev vody • nové dřevěné podlahy Dispozice: prostorná předsíň, samostatný kuchyňský kout, koupelna s WC, ložnice orientovaná do vnitrobloku a obývací pokoj s okny do ulice. Dům má udržované společné prostory a menší vnitřní dvůr, který je k dispozici pro obyvatele domu. Pokud vás byt zaujal, neváhejte nás kontaktovat, nejlépe telefonicky!
Další informace
Číslo nabídky
N447
Adresa
Praha 8, Na stráži
Dispozice bytu
2+1
Druh stavby
Cihlová
Celková plocha
48 m2
Užitná plocha
48 m2
Stav objektu
Po rekonstrukci
Typ domu
Patrový
Číslo podlaží
1
Počet podlaží
4
Vlastnictví
Osobní
PENB: Náročnost budovy
G - průkaz nedodán
7 599 000 Kč za nemovitost
|
Call Centrum CAPITAL Trust, a.s . |
| 775560871 assistant@cinzovnidomy.cz |






